Semi-Detached House in Epsom
Rear and Side Double Storey Extension
Status: Complete
Front Facade – After Photo
Front Facade – Before Photo
⠀
Existing Rear
⠀
Existing Ground Floor Plan
⠀
Proposed Ground Floorplan
⠀
Existing Elevations
⠀
Proposed Elevations
⠀
⠀
Detached Family Home in Bracknell
Rear Single Storey Extension
Status: Planning
⠀
Before – Rear Facade
⠀
Existing Floor Plan
⠀
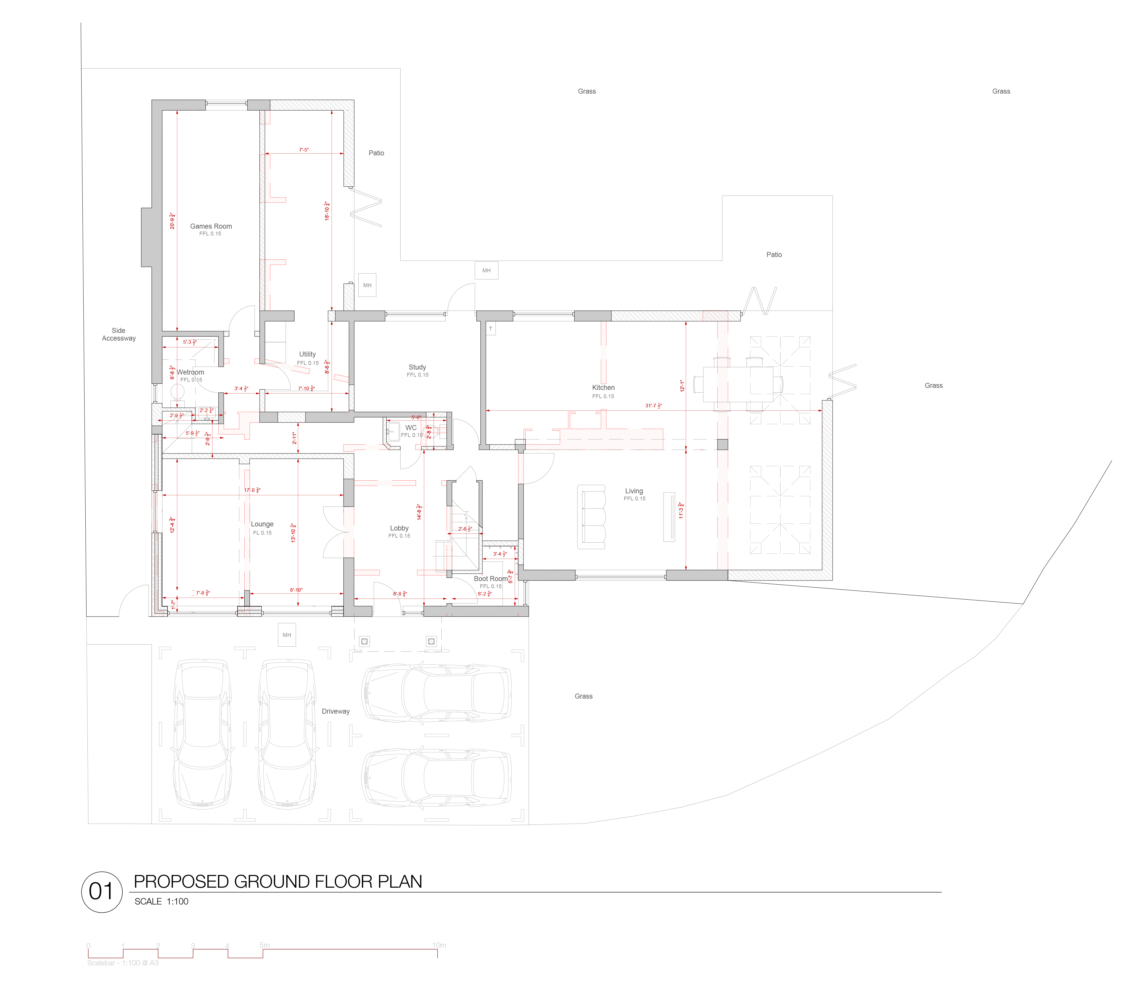
Proposed Floor Plan
⠀
Existing Elevations
⠀
Proposed Elevations
⠀
⠀
⠀⠀
Chalet Cottage in Wokingham
Single-Storey Front Infill, First-Floor Side & Rear Extension and Single-Storey Rear and Side Extensions
Status: Planning
⠀
Proposed Front Elevation Render
⠀
Proposed Side Elevation Render
⠀
Existing Ground Floor Plan
⠀
Proposed Ground Floor Plan
⠀
Existing First Floor Plan
⠀
Proposed First Floor Plan
⠀
Existing Front and Side Elevations
⠀
Proposed Front and Side Elevations
⠀
Existing Rear and Side Elevations
⠀
Proposed Rear and Side Elevations